QC型電磁橋式起重機
帶有可卸的電磁盤,本機由箱形橋架。大車運行機構、小車、電氣設備、電磁盤五部分組成,全部機構均在操縱室內操縱,當露天使用時帶有防雨設備。
- 型號: QC型
- 品牌: 恒立源
- 跨度: 可定制
- 起重量: 可定制
- 起升高度: 可定制
- 工作級別: A6
帶有可卸的電磁盤,本機由箱形橋架。大車運行機構、小車、電氣設備、電磁盤五部分組成,全部機構均在操縱室內操縱,當露天使用時帶有防雨設備。
產品介紹
帶有可卸的電磁盤,本機由箱形橋架。大車運行機構、小車、電氣設備、電磁盤五部分組成,全部機構均在操縱室內操縱,當露天使用時帶有防雨設備。
參數
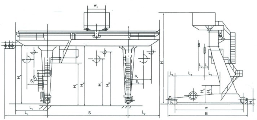
1、起重量:1、2、3、5、10、16、20、25、32噸(可根據實際要求定做)
2、跨度:7.5m-34.5m(可根據實際要求定做)
3、起升高度:3-30(米)可根據實際要求定做
4、額定起重力矩:100(kN.m)
5、最大回轉速度:2~15(r/min)
6、大車運行速度:20/3(m/min)
7、工作級別為A6
8、工作環境溫度-25°C~40°C
用途
適用干冶金工廠在室內或露天的固定跨間較繁重地裝卸及搬運具有磁性的黑色金屬制品與材料(如鋼錠、型鋼、生鐵塊)在機械廠。庫房中也常有來搬運鋼料、鐵塊、廢鐵、廢鋼、鐵屑等物料。
結構優點

服務
1、售前服務
了解客戶需求,幫助客戶選擇合理的產品。
向客戶提供前期設備安裝前的技術服務。
向客戶提供設備操作、維修、維護人員的廠內前期培訓。
2、售中服務
根據合同要求,跟蹤、生產及發貨,保證設備安全完整到達客戶指定地點。
提供設備安裝前期安裝所需各種技術參數。
3、售后服務
按合同貨客戶約定時間進行設備安裝、調試、維修。
根據客戶需求,提供現場培訓。
接待處理客戶對產品質量、服務質量的投訴,快速到達現場解決問題。
建立設備用戶檔案,每臺設備的安裝、調試、維修記錄全部存檔,保存。保證每個客戶的每臺產品具有服務的可追塑性及向客戶對每臺設備保養提供技術支持。
不定期進行客戶回訪,采集客戶對產品及服務的意見和建議并及時改進。
各服務站由售后服務站統一調配,保證服務的及時性,有效性。